赤坂フェニックスビルの賃貸事務所・賃貸オフィス物件空室情報
赤坂フェニックスビル
 
          - 
           {
              const thumb = e.target;
              const pic = $refs.picture;
              pic.setAttribute('alt', thumb.alt);
              pic.setAttribute('src', thumb.dataset.lgThumbUrl);
            }"
          > {
              const thumb = e.target;
              const pic = $refs.picture;
              pic.setAttribute('alt', thumb.alt);
              pic.setAttribute('src', thumb.dataset.lgThumbUrl);
            }"
          >
      
    
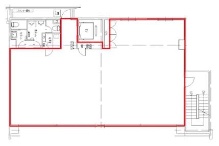
赤坂フェニックスビルの募集フロア
| 階数 | 面積 | 賃料+共益費 | 坪単価 | 保証金/敷金 | 解約引/礼金 | |
| 地上2階 | 37.69坪 | 相談 | 相談 | 敷金: 10ヶ月 | 無し | 詳細を見る | 
| 
          選択した物件をまとめてお問い合わせいただけます
          
            
          
         | ||||||
赤坂フェニックスビルのビル情報
| 住所 | 港区 赤坂 2-17-69 | 
|---|---|
| 最寄り駅 | 赤坂駅 徒歩3分 溜池山王駅 徒歩4分 溜池山王駅 徒歩4分 | 
| 竣工 | 2008年01月 | 
| 階層 | 地上7階 | 
| エレベータ | 1基 | 
| 駐車場 | なし | 
| リニューアル | |
| 開閉時間 | 24時間使用可能 | 
| 設備・オプション | その他設備・オプション駅徒歩3分以内、新耐震基準 | 
| 備考 | 
赤坂フェニックスビルの評価
| 総合評価 | 
|---|
|  | 
| アクセス | 周辺環境 | ビル設備 | 
|---|---|---|
|  |  |  | 
 
       
                  