花原第2ビルの賃貸事務所・賃貸オフィス物件空室情報
花原第2ビル
-
{
const thumb = e.target;
const pic = $refs.picture;
pic.setAttribute('alt', thumb.alt);
pic.setAttribute('src', thumb.dataset.lgThumbUrl);
}"
>
-
{
const thumb = e.target;
const pic = $refs.picture;
pic.setAttribute('alt', thumb.alt);
pic.setAttribute('src', thumb.dataset.lgThumbUrl);
}"
>
-
{
const thumb = e.target;
const pic = $refs.picture;
pic.setAttribute('alt', thumb.alt);
pic.setAttribute('src', thumb.dataset.lgThumbUrl);
}"
>
-
{
const thumb = e.target;
const pic = $refs.picture;
pic.setAttribute('alt', thumb.alt);
pic.setAttribute('src', thumb.dataset.lgThumbUrl);
}"
>
花原第2ビルは、地下鉄御堂筋線の「西中島南方駅」から徒歩5分、阪急京都線の「南方駅」から、徒歩7分の場所に位置しています。
そのほかに、各線の「新大阪駅」からも徒歩約10分でアクセスが可能です。
(住所:大阪市淀川区西中島4丁目)
地上8階建ての賃貸オフィスビル。
1983年に竣工され、新耐震基準をクリアしている鉄筋コンクリート造の物件です。
室内、館内設備は、個別空調、光ファイバー、男女別トイレなどがあり、エレベーターは1基設置されています。24時間の使用が可能な物件です。
周辺には「淀川木川東郵便局」や「東淀川税務署」「りそな銀行新大阪駅前支店」「セブンイレブン大阪西中島6丁目店」などがあります。
淀川区、西中島、南方エリアで物件をお探しのお客様、詳しい条件などについては、当社までお気軽にお問合せ下さいませ。お待ちしております。
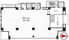
花原第2ビルの募集フロア
| 階数 | 面積 | 賃料+共益費 | 坪単価 | 保証金/敷金 | 解約引/礼金 | |
| 地上2階 | 67.3坪 | 相談 | 相談 | 相談 | 相談 |
詳細を見る
|
| 地上7階 | 14坪 | 相談 | 相談 | 相談 | 相談 |
詳細を見る
|
|
選択した物件をまとめてお問い合わせいただけます
|
||||||
花原第2ビルのビル情報
| 住所 | 大阪市淀川区 西中島 4-11-30 |
|---|---|
| 最寄り駅 |
西中島南方駅 徒歩5分 |
| 竣工 | 1983年03月 |
| 階層 | 地上8階 |
| エレベータ | 1基 |
| 駐車場 | なし |
| リニューアル | |
| 開閉時間 |
24時間使用可能 |
| 設備・オプション |
その他設備・オプション新耐震基準 |
| 備考 |
・火災保険加入要 |
花原第2ビルの評価
| 総合評価 |
|---|
|
|
| アクセス | 周辺環境 | ビル設備 |
|---|---|---|
|
|
|
|
花原第2ビルの周辺地図
1: ミニストップ西中島4丁目店...徒歩3分
2: セブンイレブン大阪西中島6丁目店...徒歩3分
3: ファミリーマート西中島四丁目店...徒歩3分
4: 淀川木川東郵便局...徒歩4分
5: 東淀川税務署...徒歩5分
6: りそな銀行新大阪駅前支店...徒歩4分