第3てんいビル(第三天偉ビル)の賃貸事務所・賃貸オフィス物件空室情報
第3てんいビル(第三天偉ビル)
-
{
const thumb = e.target;
const pic = $refs.picture;
pic.setAttribute('alt', thumb.alt);
pic.setAttribute('src', thumb.dataset.lgThumbUrl);
}"
>
第3てんいビル(第三天偉ビル)は、地下鉄谷町線と千日前線の「谷町九丁目駅」と、地下鉄長堀鶴見緑地線の「松屋町駅」から、それぞれ徒歩7分の場所に位置しています。
地上4階建ての賃貸オフィスビルです。1970年に竣工された、鉄骨造の物件です。(住所:大阪市中央区瓦屋町2丁目)
こちらは店舗使用が可能ですので、テナント区画をお探しのお客様におすすめです。(業種などについては一度ご確認ください。)また、初期費用を抑えることが出来ますので、スタートアップ向けの物件としてもおすすめしています。新規独立や開業をお考えのお客様はぜひ一度ご検討ください。
室内の空調は、各室で調節が可能な個別空調を採用しています。光ファイバーを導入している為、快適なインターネット環境です。
ビルは大通り沿いに位置しており視認性に優れています。
中央区、松屋町、谷町九丁目エリアで物件をお探しのお客様、詳しい条件などについては、ぜひ一度当社までお気軽にお問い合わせくださいませ。お待ちしております。
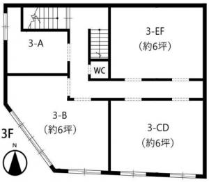
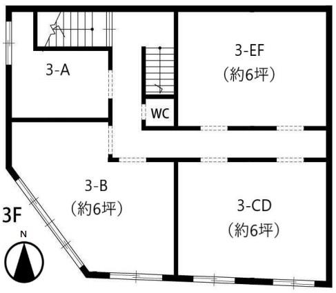
第3てんいビル(第三天偉ビル)の募集フロア
| 階数 | 面積 | 賃料+共益費 | 坪単価 | 保証金/敷金 | 解約引/礼金 | |
|
選択した物件をまとめてお問い合わせいただけます
|
||||||
第3てんいビル(第三天偉ビル)のビル情報
| 住所 | 大阪市中央区 瓦屋町 2-10-14 |
|---|---|
| 最寄り駅 |
谷町九丁目駅 徒歩7分 谷町九丁目駅 徒歩7分 松屋町駅 徒歩7分 |
| 竣工 | 1970年09月 |
| 階層 | 地上4階 |
| エレベータ | |
| 駐車場 | なし |
| リニューアル | |
| 開閉時間 | |
| 設備・オプション |
その他設備・オプション大通沿い、角ビル |
| 備考 |
・定期借家契約6年 ・短期解約違約金:2年以内は賃料2か月分 ・保証会社加入要:USEN ・火災保険加入要 ・鍵交換代:実費 |
第3てんいビル(第三天偉ビル)の評価
| 総合評価 |
|---|
|
|
| アクセス | 周辺環境 | ビル設備 |
|---|---|---|
|
|
|
|
第3てんいビル(第三天偉ビル)の周辺地図
1: セブンイレブン大阪瓦屋町3丁目店...徒歩1分
2: ファミリーマート瓦屋町二丁目店...徒歩2分
3: ローソン高津1丁目店...徒歩2分