• TOP
  • SUN TORAビル

SUN TORAビルの賃貸事務所・賃貸オフィス物件空室情報

SUN TORAビル

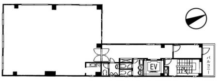
SUN TORAビル基準階図面
  • SUN TORAビル基準階図面

SUN TORAビルは、都営三田線「芝公園」駅から徒歩4分、都営大江戸線「赤羽橋」駅から徒歩7分ほどの場所に位置。
(住所:港区芝3丁目)

地上5階建ての賃貸オフィスビル。
1990年に竣工され、新耐震基準をクリアした鉄骨造の物件です。

空調は、各室で調整可能な個別空調。
光ファイバーを導入し、快適なインターネット環境です。
ウォシュレット付き男女別トイレ完備され、エレベーターは、1基設置されております。
セキュリティは安心の機械警備を採用しており、24時間の使用が可能な物件です。

港区、芝公園エリアで物件をお探しのお客様、詳しい条件などについては、ぜひ一度当社までお気軽にお問い合わせくださいませ。お待ちしております。

SUN TORAビルの募集フロア

階数 面積 賃料+共益費 坪単価 保証金/敷金 解約引/礼金
地上2階 46.88坪 609,440円 13,000円 保証金: 4,500,000円 無し 詳細を見る
選択した物件をまとめてお問い合わせいただけます

SUN TORAビルのビル情報

住所 港区 芝 3-24-3
最寄り駅

芝公園駅 徒歩4分

赤羽橋駅 徒歩7分

竣工 1990年12月
階層 地上5階
エレベータ 1基
駐車場 なし
リニューアル
開閉時間

平日 8:00 〜 20:00

土曜 セキュリティカードにて入館

日祝 セキュリティカードにて入館

24時間使用可能

設備・オプション
その他設備・オプション

新耐震基準

備考 ・更新料:新賃料1ヶ月分

SUN TORAビルの評価

総合評価
(4.33 / 5.00)
アクセス 周辺環境 ビル設備
(4.00 / 5.00)
(4.00 / 5.00)
(5.00 / 5.00)

SUN TORAビルの周辺地図

SUN TORAビルに似た物件

お気に入り中0
お問い合わせ

閲覧履歴

株式会社 オオシタ商事

ご希望の条件にピッタリのオフィスをお探しいたします

条件などお知らせ頂けましたら、非公開物件含めピッタリのオフィスをご提案させて頂きます。
具体的な物件がお決まりでない場合でもお気軽にお問い合わせください。