岸本ビルの賃貸事務所・賃貸オフィス物件空室情報
岸本ビル
-
{
const thumb = e.target;
const pic = $refs.picture;
pic.setAttribute('alt', thumb.alt);
pic.setAttribute('src', thumb.dataset.lgThumbUrl);
}"
>
岸本ビルは、東京メトロ千代田線「二重橋前」駅から徒歩1分、東京メトロ丸の内線・JR各線「東京」駅から徒歩4分ほどの場所に位置。
(住所:千代田区丸の内2丁目)
地上11階、地下2階建ての賃貸オフィスビル。
1980年に竣工された鉄骨鉄筋コンクリート造の物件です。
ビルは、大通り沿いの角地に位置し、視認性に優れております。
空調は、各室で調整可能な個別空調とセントラル空調を併用。
光ファイバーを導入し、快適なインターネット環境です。
ウォシュレット付き男女別トイレ完備され、エレベーターは、8基設置されております。
セキュリティは安心の機械警備を採用しており、24時間の使用が可能な物件です。
千代田区、二重橋前駅、東京駅周辺で物件をお探しのお客様、詳しい条件などについては、ぜひ一度当社までお気軽にお問い合わせくださいませ。お待ちしております。
岸本ビルの募集フロア
| 階数 | 面積 | 賃料+共益費 | 坪単価 | 保証金/敷金 | 解約引/礼金 | |
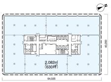
| 地上8階 | 24.04坪 | 相談 | 相談 | 相談 | 無し |
詳細を見る
|
|
選択した物件をまとめてお問い合わせいただけます
|
||||||
岸本ビルのビル情報
| 住所 | 千代田区 丸の内 2-2-1 |
|---|---|
| 最寄り駅 |
二重橋前駅 徒歩1分 東京駅 徒歩4分 東京駅 徒歩4分 |
| 竣工 | 1980年07月 |
| 階層 | 地上11階 地下2階 |
| エレベータ | 8基 |
| 駐車場 | あり |
| リニューアル | |
| 開閉時間 |
平日 8:00 〜 20:00 土曜 8:00 〜 15:00 日祝 セキュリティカードにて入館 24時間使用可能 |
| 設備・オプション |
その他設備・オプション大通沿い、角ビル、駅徒歩3分以内、駐車場 |
| 備考 |
岸本ビルの評価
| 総合評価 |
|---|
|
|
| アクセス | 周辺環境 | ビル設備 |
|---|---|---|
|
|
|
|