浦野ビルの賃貸事務所・賃貸オフィス物件空室情報
浦野ビル
-
{
const thumb = e.target;
const pic = $refs.picture;
pic.setAttribute('alt', thumb.alt);
pic.setAttribute('src', thumb.dataset.lgThumbUrl);
}"
>
浦野ビルは、東京メトロ半蔵門線・都営各線「神保町」駅から徒歩5分ほどの場所に位置。
(住所:千代田区神田神保町)
地上8階建ての賃貸オフィスビル。
1983年に竣工され、新耐震基準をクリアした鉄骨鉄筋コンクリート造の物件です。
ワンフロアーワンテナントの物件ですので、隣室を気にすることなく、プライベートなオフィス空間をご使用頂く事が可能です。
空調は、各室で調整可能な個別空調。
光ファイバーを導入し、快適なインターネット環境です。
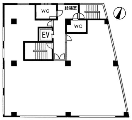
男女別トイレ完備され、エレベーターは、1基設置されております。
セキュリティは安心の機械警備を採用しており、24時間の使用が可能な物件です。
千代田区、神保町エリアで物件をお探しのお客様、詳しい条件などについては、ぜひ一度当社までお気軽にお問い合わせくださいませ。お待ちしております。
浦野ビルの募集フロア
| 階数 | 面積 | 賃料+共益費 | 坪単価 | 保証金/敷金 | 解約引/礼金 | |
| 地上5階 | 71.19坪 | 854,256円 | 12,000円 | 保証金: 8ヶ月 | 解約引: 2ヶ月 |
詳細を見る
|
|
選択した物件をまとめてお問い合わせいただけます
|
||||||
浦野ビルのビル情報
| 住所 | 千代田区 神田神保町 1-50 |
|---|---|
| 最寄り駅 |
神保町駅 徒歩5分 神保町駅 徒歩5分 神保町駅 徒歩5分 |
| 竣工 | 1983年03月 |
| 階層 | 地上8階 |
| エレベータ | 1基 |
| 駐車場 | なし |
| リニューアル | |
| 開閉時間 |
24時間使用可能 |
| 設備・オプション |
その他設備・オプション新耐震基準 |
| 備考 |
浦野ビルの評価
| 総合評価 |
|---|
|
|
| アクセス | 周辺環境 | ビル設備 |
|---|---|---|
|
|
|
|