• TOP
  • BIASTA JIMBOCHO

BIASTA JIMBOCHOの賃貸事務所・賃貸オフィス物件空室情報

BIASTA JIMBOCHO

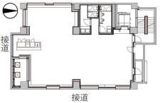
BIASTA JIMBOCHO基準階図面
  • BIASTA JIMBOCHO基準階図面

BIASTA JIMBOCHOは、都営新宿線「小川町」駅、東京メトロ千代田線「新御茶ノ水」駅からそれぞれ徒歩6分ほどの場所に位置。
(住所:千代田区神田錦町3丁目)

地上8階建ての賃貸オフィスビル。
2025年に竣工され、新耐震基準をクリアした鉄筋コンクリート造の物件です。

空調は、各室で調整可能な個別空調。
光ファイバーを導入し、快適なインターネット環境です。
ウォシュレット付き男女別トイレ完備され、エレベーターは、1基設置されております。
セキュリティは安心の機械警備を採用しており、24時間の使用が可能な物件です。

千代田区、小川町、新御茶ノ水エリアで物件をお探しのお客様、詳しい条件などについては、ぜひ一度当社までお気軽にお問い合わせくださいませ。お待ちしております。

BIASTA JIMBOCHOの募集フロア

階数 面積 賃料+共益費 坪単価 保証金/敷金 解約引/礼金
地上4階 45.03坪 1,666,110円 37,000円 保証金: 2ヶ月 無し 詳細を見る
地上5階 45.03坪 1,666,110円 37,000円 保証金: 2ヶ月 無し 詳細を見る
選択した物件をまとめてお問い合わせいただけます

BIASTA JIMBOCHOのビル情報

住所 千代田区 神田錦町 3-14
最寄り駅

小川町駅 徒歩6分

新御茶ノ水駅 徒歩6分

竣工 2025年12月
階層 地上8階
エレベータ 1基
駐車場 なし
リニューアル
開閉時間

24時間使用可能

設備・オプション
その他設備・オプション

新耐震基準、リフレッシュルーム、貸し会議室、角ビル

備考

BIASTA JIMBOCHOの評価

総合評価
(4.17 / 5.00)
アクセス 周辺環境 ビル設備
(3.50 / 5.00)
(4.00 / 5.00)
(5.00 / 5.00)

BIASTA JIMBOCHOの周辺地図

BIASTA JIMBOCHOに似た物件

お気に入り中0
お問い合わせ

閲覧履歴

株式会社 オオシタ商事

ご希望の条件にピッタリのオフィスをお探しいたします

条件などお知らせ頂けましたら、非公開物件含めピッタリのオフィスをご提案させて頂きます。
具体的な物件がお決まりでない場合でもお気軽にお問い合わせください。