末広町駅の賃貸事務所・賃貸オフィス一覧

検索結果 16件のビル

秋葉原槇町ビル

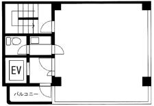
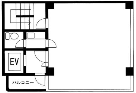
秋葉原槇町ビル基準階図面
  • 秋葉原槇町ビル基準階図面
住所 千代田区 外神田 3-3-3
最寄り駅

末広町駅 徒歩5分

秋葉原駅 徒歩7分

竣工 1989年06月
階層 地上9階
内覧・空室のお問い合わせ
階数 面積 賃料+共益費 坪単価 保証金/敷金 解約引/礼金
地上8階 17.82坪 267,300円 15,000円 保証金: 8ヶ月 無し 詳細を見る
選択した物件をまとめてお問い合わせいただけます
ビルの詳細を見る
1 2
お気に入り中0
お問い合わせ
株式会社 オオシタ商事

ご希望の条件にピッタリのオフィスをお探しいたします

条件などお知らせ頂けましたら、非公開物件含めピッタリのオフィスをご提案させて頂きます。
具体的な物件がお決まりでない場合でもお気軽にお問い合わせください。