GINZA YANAGI PLAZA 6階の賃貸事務所・賃貸オフィス物件空室情報
GINZA YANAGI PLAZA 6階の募集フロア情報
内覧・空室のお問い合わせ空き状況 | 募集中 (即入居) |
---|---|
月額費用合計 | 2,301,480円 |
保証金/敷金 | 相談 |
解約引/礼金 | 無し |
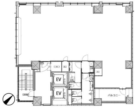
種別 | オフィス |
面積 | 63.93坪 |
OAフロア | 有 |
オプション | ワンフロア、店舗相談 |
備考 | ■定期借家契約5年 |
※ 表記されている金額はすべて税抜きとなります。(保証金/敷金は除く)
※ ご紹介の物件はすべて媒介です。ご成約の際には規定の仲介手数料を承ります。
GINZA YANAGI PLAZA その他の募集フロア
階数 | 面積 | 賃料+共益費 | 坪単価 | 保証金/敷金 | 解約引/礼金 | |
選択した物件をまとめてお問い合わせいただけます
|
GINZA YANAGI PLAZA のビル情報

-
{ const thumb = e.target; const pic = $refs.picture; pic.setAttribute('alt', thumb.alt); pic.setAttribute('src', thumb.dataset.lgThumbUrl); }" >
GINZA YANAGI PLAZAは、東京メトロ有楽町線「銀座一丁目」駅から徒歩1分、JR山手線「有楽町」駅から徒歩4分ほどの場所に位置。
(住所:中央区銀座1丁目)
地上8階、地下1階建ての賃貸オフィスビル。
2025年に竣工され、新耐震基準をクリアした鉄筋コンクリート造の物件です。
空調は、各室で調整可能な個別空調。
光ファイバーを導入し、快適なインターネット環境です。
ウォシュレット付き男女別トイレ完備され、エレベーターは、2基設置されております。
中央区、銀座、有楽町エリアで物件をお探しのお客様、詳しい条件などについては、ぜひ一度当社までお気軽にお問い合わせくださいませ。お待ちしております。
住所 | 中央区 銀座 1-4-11 |
---|---|
最寄り駅 |
銀座一丁目駅 徒歩1分 有楽町駅 徒歩4分 銀座駅 徒歩5分 |
竣工 | 2025年08月 |
階層 | 地上8階 地下1階 |
エレベータ | 2基 |
駐車場 | 調査中 |
リニューアル | |
開閉時間 |
24時間使用可能 |
設備・オプション |
その他設備・オプション駅徒歩3分以内、新耐震基準 |
備考 |
・定期借家契約 ・更新料:新賃料1ヶ月分 |
GINZA YANAGI PLAZA の評価
総合評価 |
---|
|
アクセス | 周辺環境 | ビル設備 |
---|---|---|
|
|
|