【本町エリア】新築×セットアップ対応。選べる2タイプの新築オフィス
- 作成日:
- 更新日:
大阪メトロ四ツ橋線『本町』駅から徒歩3分
リアライズ立売堀ビルのご紹介です☆彡
2026年3月末竣工予定の建築中の賃貸オフィスビル
新耐震基準をクリアした鉄筋コンクリート造の物件です。
ウォシュレット付きの男女別トイレを完備。
光ファイバーも導入済みで、快適なインターネット環境を確保しています。
また、機械警備を導入しているためセキュリティ面も安心。
24時間利用可能で、柔軟な働き方にも対応可能です。

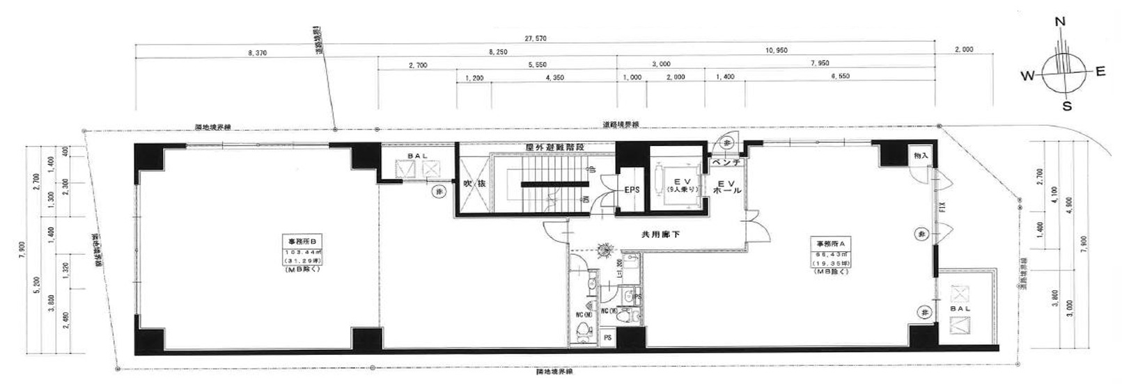
セットアップ区画と、ベーシックなオフィス仕様区画の2タイプを予定しております。
1フロア2テナントの構成で、19.79坪・31.29坪の2パターンをご用意。
企業規模や用途に応じてお選びいただけます。

セットアップ区画
※掲載写真は完成イメージパースです。
天井はコンクリート打ち放し仕上げ。
ブラックのライティングレールが空間を引き締め、洗練されたオフィス空間を演出します。
必要な備品を揃えるだけで、入居後すぐに業務スタートすることが可能。
内装工事の手間やコストを抑えたい企業様にもお勧めです。

会議室は落ち着いた雰囲気で、社内外の打ち合わせにご利用いただけます。
モニター設置も想定された設計で、オンライン会議にもスムーズに対応できます。
2026年3月末竣工予定の新築物件のため、現在は未入居区画をご紹介可能です◎
リアライズ立売堀ビルの最新情報はこちらをクリック→★
西区、本町エリアで物件をお探しの方、
お気軽にオフィスフィットまでお問い合わせ下さい☆彡
★お問い合わせ先★
TEL:0120-088-513
メッセージでのお問い合わせも可能です。
https://office-fit.co.jp/contact
リアライズ立売堀ビル

パース

パース

パース
物件名:リアライズ立売堀ビル
所 在:大阪市西区立売堀1丁目
構 造:鉄筋コンクリート造
築年月:2026年3月竣工予定
関連記事
【南森町エリア】貴重な北区の一棟貸しオフィスビル!
大阪市北区西天満3-13-12ARTビル最上階居住スペース完備!
【箕面エリア】2024年春 北大阪急行延伸開業決定☆!箕面エリアの大型オフィスビル
ワンフロア200坪超。新御堂筋沿いの角ビル♪
【本町エリア】『本町駅』徒歩3分のデザイナーズリノベーションオフィス!
大阪市中央区備後町3-4-8フクエイビルアパレル店のようなおしゃれな内観!
【本町エリア】初期費用格安、リフォーム済デザイナーズオフィス!
大阪市西区阿波座1丁目3番地18号エッグビル本町平成20年リニューアル済のデザイナーズオフィス!
【本町】利便性と快適性を兼ね備えた、本町駅徒歩1分オフィス
野村不動産御堂筋本町ビル
