ID:7366【堺筋本町エリア】コンクリート打ちっぱなし★新築デザイナーズオフィス
- 作成日:
- 更新日:
大阪メトロ各線『堺筋本町』駅から徒歩5分
大阪メトロ長堀鶴見緑地線『長堀橋』駅から徒歩6分
CONCOM 堺筋本町 Southのご紹介です☆彡

2025年9月末に竣工したばかり★!
地上6階建ての鉄筋コンクリート造の新築物件です。
こちらの物件は、統一感のあるコンクリート打ちっぱなし仕様となっており、
シンプルでありながらもデザイン性が高く、訪れる人に都会的でスタイリッシュな雰囲気を感じさせます。
エントランスはオートロックがあり、セキュリティ面も安心してご利用いただけます。

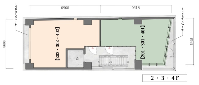
1区画 約11坪のコンパクトなサイズ
スケルトン渡しとなっており、内装デザインは指定業者による施工のため、
入居者様の業態やブランドイメージに合わせた空間づくりが可能です。
コンクリート打ちっぱなしの構造体をベースに、照明計画や素材選びによって多彩な空間演出ができます。
オフィスや店舗、アトリエなど、用途に応じて自由にレイアウトを設計できる柔軟な仕様となっております。
詳しい業種内容、賃料などの条件に関しましてはお問い合わせ下さい♪
CONCOM 堺筋本町 Southの最新情報はこちらをクリック→★

堺筋本町エリアは、オフィス街の機能性と都心の快適さを兼ね備えた人気のビジネスゾーンです。
周辺にはカフェや飲食店が多く、働く人のライフスタイルにも寄り添った環境が整っています。
近年はリノベーション物件やデザイン性の高いビルも増え、
感度の高い店舗やクリエイティブオフィスが集まるエリアとして注目されています。
堺筋本町エリアで物件をお探しのお客様、
お気軽にオフィスフィットまでお問い合わせ下さい☆彡
☆お問合せ先☆
TEL:0120-088-013
メッセージでのお問い合わせも可能です。
【店舗フィットを見た】とお伝えください